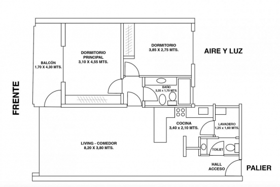
CONTACTO: María del Pilar Bergallo - 1544384409. DUEÑO DIRECTO! Espectacular departamento de dos ambientes, con 1 baño completo con bañera; un toilette; balcón a la calle y cocina separada. Todos los ambientes son muy luminosos, el frente da a la calle Rodríguez Peña. El contrafrente da a un aire luz del edificio que da luz a la cocina y al dormitorio. Todo eléctrico: horno con anáfes vitrocerámicos de calidad y termotanque del baño. Tiene una cochera fija en el 2º subsuelo con ascensor para vehículos. En la parte superior posee los amenities del edificio, con pileta, solárium, sauna, gimnasio y laundry. Inmejorable ubicación a una cuadra de Avenida santa Fe y Callao, con múltiples colectivos sobre Avenida Santa Fe, y estación CALLAO de subte de la línea D a dos cuadras, y estación CALLAO línea B a siete cuadras. INTERMEDIARIOS ABSTENERSE
Português
English
Español







